
Dopravní značka Vyhrazené parkoviště
Tato dopravní značka údaje o tom, pro koho je parkoviště vyhrazeno, například název organizace, státní poznávací značka a popřípadě v jaké době, jsou uvedeny na dodatkové tabulce; tyto údaje mohou být uvedeny i na značce místo nápisu, například "RÉSERVÉ", "TAXI", "BUS"; mimo dobu, po kterou je parkoviště vyhrazeno, smějí na takto označeném místě zastavit a stát i řidiči jiných vozidel, pokud to není jinak zakázáno.
Materiál: FeZn, fólie tř.1
Velikost: 500 × 30 mm
Hmotnost: 2 Kg
Objímky
V případě objednání hliníkových objímek vám budou dodány dva kusy včetně čtyř kusů šroubů a matic. Objímky použijete pro uchycení dopravní značky na tzv. Cé lištu, která je součástí každé značky. Objímky standardně dodáváme na sloupek o průměru 60 mm.
Širší nabídku objímek podle charakteru dopravního značení naleznete zde: Příslušenství
Kotevní patky
Kovící patka je vyrobena jako odlitek z hliníkové slitiny. Slouží pro ukotvení sloupku o průměru 60 nebo 70 mm. Značka se zasune do předem zabetonované kotevní patky a zaaretuje třemi šrouby. Rozměr základny kotevní patky je cca 170 × 170 mm, výška 180 mm.
Sloupky
Sloupky k dopravnímu značení nabízíme v různých délkách a průměrech. Jedná se o ocelový sloupek s povrchovou úpravou žárový zinek.
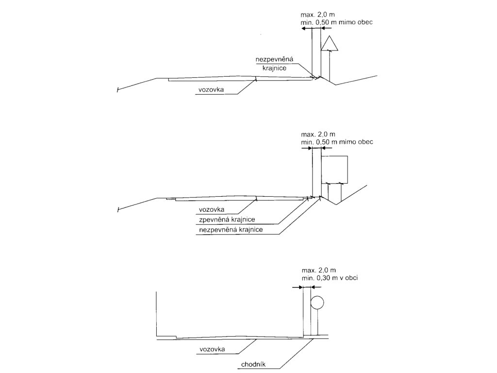
Boční umístění
Nejmenší vodorovná vzdálenost bližšího okraje svislé značky, dopravního zařízení včetně jejich nosné konstrukce od vnějšího okraje zpevněné části krajnice, případně od vozovky (u pozemní komunikace bez zpevněné části krajnice), je 0,50 m; největší vzdálenost je 2,00 m. Ve výjimečných případech je možno v obci (na pozemní komunikaci bez krajnice) nejmenší vzdálenost snížit na 0,30 m.
Výškové umístění
Spodní okraj nejníže umístěné standardní stálé značky (včetně dodatkové tabulky) je nejméně 1,20 m nad úrovní vozovky. Spodní okraj velkoplošné značky je nejméně 1,50 m nad úrovní vozovky.
V místě, kde je v odůvodněném případě nutno značku umístit do průchozího prostoru pro pěší, je spodní okraj nejníže umístěné značky (včetně dodatkové tabulky) ve výšce nejméně 2,20 m. V místě, kde je v odůvodněném případě nutno umístit značku do průjezdního prostoru pro cyklisty, je spodní okraj nejníže umístěné značky (včetně dodatkové tabulky) ve výšce 2,50 m nad úrovní stezky pro cyklisty nebo stezky pro cyklisty a chodce. Spodní okraj nejníže umístěné značky může být nejvýše 2,70 m nad úrovní vozovky, stezky nebo terénu.



